Edificio Victoria 1

LocationLocation Torrevieja
RegionRegion Costa Blanca
BedroomBedroom 1-3
Area (m2)Area (m2) 51-161
BathroomBathroom 1-2
Garden / TerraceGarden / Terrace No
PoolPool Yes
ParkingParking Yes
WellnessWellness No
Number of ApartmentsNumber of Apartments 16
Year of HandoverYear of Handover 2026
PricePrice 195 000 

A modern residential development in the heart of Torrevieja, offering stylish apartments with premium finishes and exceptional comfort. Designed for those who value quality living by the Mediterranean.

Apartments

The apartments at Edificio Victoria I are designed for modern Mediterranean living, combining comfort, efficiency, and refined finishes. Each home features fully equipped kitchens with high-end appliances, elegant bathrooms with premium brands, and bright living spaces enhanced by large windows and private terraces. Built with quality materials such as porcelain flooring, thermal insulation, and advanced air-conditioning systems, these residences offer both durability and everyday luxury.

Location

Situated in Playa del Cura, Torrevieja, the development places you just moments from the sea, vibrant promenades, and essential services. This privileged setting offers a perfect balance between relaxed coastal living and urban convenience, making it ideal for both permanent residence and holiday enjoyment.

Architecture & Design

The building presents a contemporary architectural style with clean lines and high-quality façade finishes. Thoughtful design ensures natural light, energy efficiency, and a cohesive aesthetic that feels both modern and timeless.

Facilities & Amenities

Residents benefit from a rooftop solarium with jacuzzi and panoramic views, underground parking options, and advanced installations such as aerothermal systems and smart video intercoms—creating a comfortable and secure living environment.

Discover your place in the sun at Edificio Victoria I.


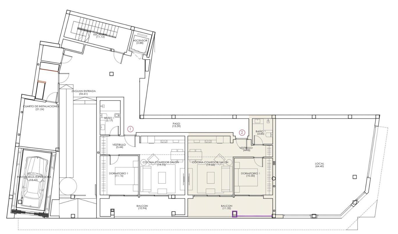
Apartment “type A” on ground floor for 195 000 Eur

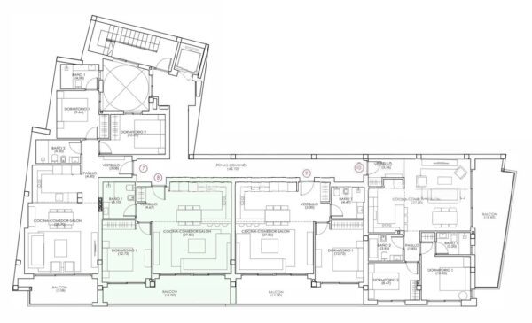
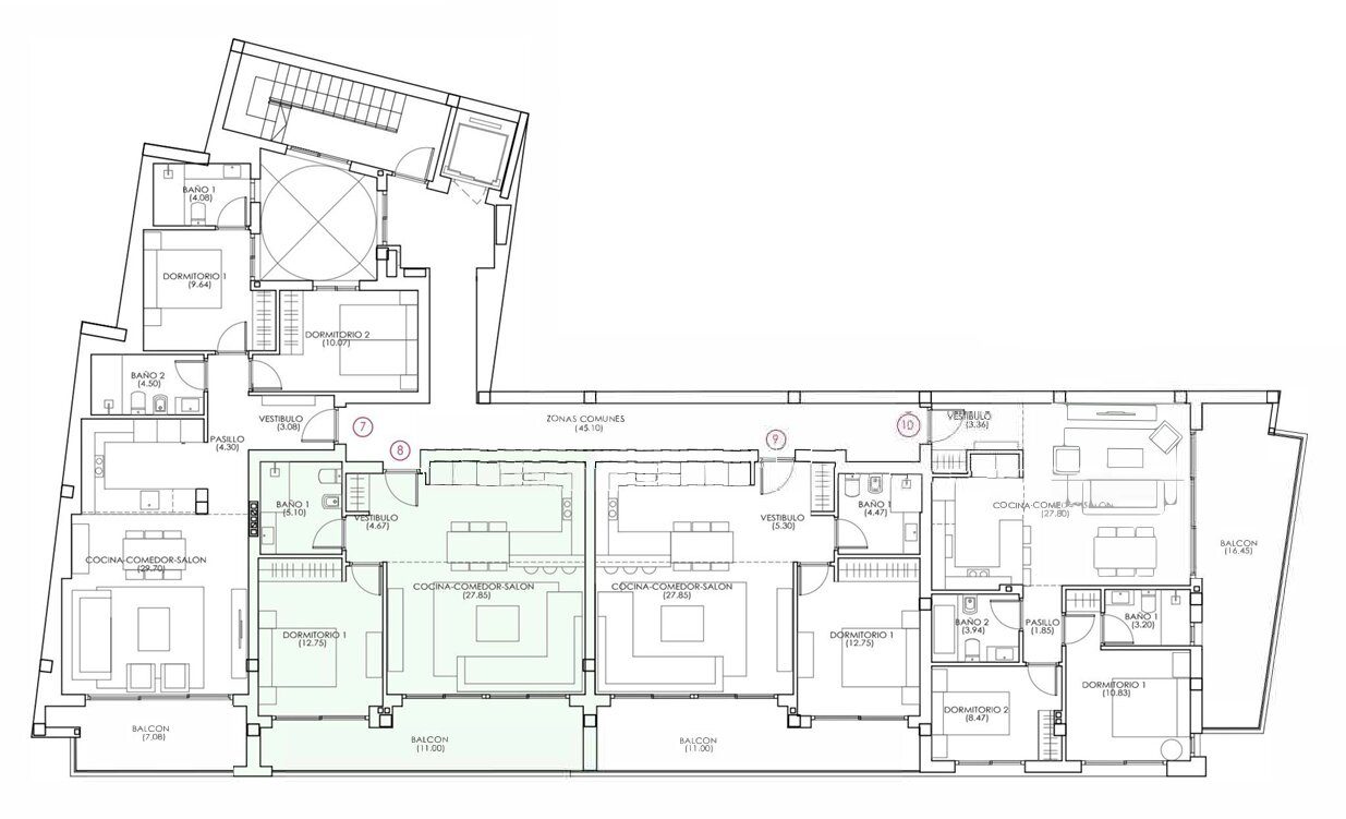
Apartment “type B” on the 2nd floor for 255 000 Eur

 

VIDEO GALLERY

Location of the property

DOCUMENTS

  • Prices and availability are correct at the time of publication but may change. Please contact us to confirm.
  • Images are for illustrative purposes only and may vary. Furniture shown is decorative and not included. Properties are delivered as per the official quality specifications.
  • Prices are net and do not include taxes. For more information, please, visit this article in our blog.

Don’t miss out!

Be the first to learn about the latest Spanish properties and exclusive offers!

Enter your email and join our newsletter today!

Call Contact